
Model Features
- MERV 8 filters (MERV 13 option available)
- Typical Airflow range 10 - 130 CFM
- Capable of being installed in ceiling or wall mounting with a minimum height or depth of 9.5"
- Onboard digital controller with independent variable speeds
- Four 6" duct collars for easy duct connection
- White painted cabinet with access door for easy access to blowers, core, and filters.
- Line cord power supply (TRLPe110) or hard-wired to junction box (TRLPe110H)
- Wall mount bracket & ceiling mount hanging systems
- HVI Certified, cETLus listed, Ecowatt
- No condensate pan or drain required
- Fixed-plate cross-flow core, capable of transferring both sensible and latent energy between airstreams.
- Dial-A-Flow - balance and airflow adjustment

Model Overview
The Total Recovery series with Electronically Commutated (EC) Motor uses a multi-speed control with an air-to-air energy exchange core to create balanced energy ventilation for residential and light commercial applications. TRLPe’s compact design makes it an ideal solution for residential, mixed-use, and multi-family applications where space is a concern. With an included EC motor and HVI certification, these Total Recovery models meet all of the requirements for the Ecowatt® standard for energy-efficient products. The Ecowatt® standard is used to classify energy-efficient products that use Electronically Commutated (EC) or Direct Current (DC) motors that have certified performance from AMCA or HVI.
10-year core warranty, 2-year unit warranty
Core Performance for TRLPe110
| Airflow (CFM) | Sensible EFF% | Total EFF% Winter/Summer |
|---|---|---|
|
Max. Speed |
||
| 138 | 62 | 54/36 |
| 131 | 64 | 55/38 |
| 125 | 65 | 57/40 |
| 117 | 66 | 59/42 |
| 110 | 68 | 60/44 |
| 102 | 69 | 62/46 |
| 95 | 71 | 64/48 |
| 87 | 72 | 66/51 |
| 78 | 74 | 68/53 |
| 68 | 76 | 70/56 |
| 49 | 79 | 75/61 |
| 34 | 82 | 78/66 |
|
Min. Speed |
||
| 26 | 84 | 80/68 |
| 11 | 87 | 83/72 |
Core Performance for TRLPe110H
| Airflow (CFM) | Sensible EFF% | Total EFF% Winter/Summer |
|
|---|---|---|---|
|
Max. Speed |
|||
| 138 | 62 | 54/36 | |
| 131 | 64 | 55/38 | |
| 125 | 65 | 57/40 | |
| 117 | 66 | 59/42 | |
| 110 | 68 | 60/44 | |
| 102 | 69 | 62/46 | |
| 95 | 71 | 64/48 | |
| 87 | 72 | 66/51 | |
| 78 | 74 | 68/53 | |
| 68 | 76 | 70/56 | |
| 49 | 79 | 75/61 | |
| 34 | 82 | 78/66 | |
|
Min. Speed |
|||
| 26 | 84 | 80/68 | |
| 11 | 87 | 83/72 | |
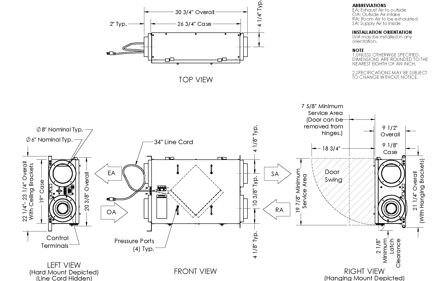
Dimensions for TRLPe110
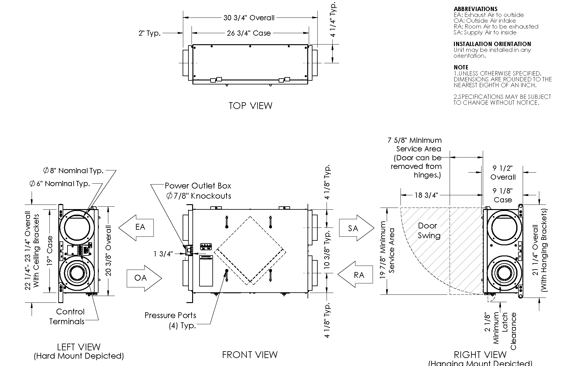
Dimensions for TRLPe110H
Additional accessories are available for certain products. Contact your S&P Representative for more information about these accessories.
General Accessories
| CAR150 | 6" Steel Backdraft Damper | Submittal |
| CAR200 | 8" Steel Backdraft Damper | Submittal |
Electrical Accessories
| FT247 | Programmable Fan Timer | Submittal |
| MD6 | 6" Motorized Damper 24V | Submittal |
| ES24V | Envirosense Ventilation Control | Submittal IOM |
| SHW-20 | Wall Mounted Dehumidistat | Submittal |
| SPBT | Push Button Point of Use Boost Timer (TRe/TRLPe) NOT COMPATIBLE WITH SPTL | Submittal |
| SPTL | Percentage Timer Control | Submittal |
| STC7D | Digital Time Clock | IOM |
| SMC-C | MOTION OCCUPANCY CONTROL CEILING | IOM |
| SMC-W | MOTION OCCUPANCY CONTROL WALL | IOM |
| DH6-120V | 6" Duct Heater 120V | Submittal |
| SCO2-W | Carbon Dioxide Control - Wall Mount | IOM |
Standard Accessories
| 990076 | Universal Filters (10 Packs of Filter Media) | Submittal |
| 990447 | Universal Filters (3 Packs of Filter Media) | Submittal |
| 990661 | MERV13 Filter (71⁄4" X 101⁄4" X 1") | |
| 990771 | MERV13 (71⁄4" X 101⁄4" X 1") Filter, 3 Pack | |
| 990772 | MERV13 (71⁄4" X 101⁄4" X 1") Filter, 10 Pack | |
| 990773 | MERV13 (71⁄4" X 101⁄4" X 1") Filter, 25 Pack | |
| BD6 | 6" Gravity Backdraft Damper | |
| BD8 | 8" Gravity Backdraft Damper | |
| FA8-P | 8" Paintable Metal Wall Cap | |
| VB-106 | 6" Brown Vinyl Wall Cap | |
| VT8 | 8" Taupe Vinyl Wall Cap | |
| VW106 | 6" White Vinyl Wall Cap | |
| VW12X8 | 12x8-inch Louver to 8" Round Galvanized Metal Wall Cap |
- Residential
- Mixed-Use-Building
- Hotels & Resorts
- Assisted Living
- General/Clean Air
- Contaminated Air
- Energy Recovery