TRC Total Recovery for All Climates (Commercial Applications)

Energy Recovery Ventilators

TRC Model

Model Features

  • MERV-8 filters
  • Transformer/relay package allowing simple on/off control
  • Access doors for easy access to blowers, core, and filters
  • Fully insulated case
  • Large cores for high efficiency
  • No condensate pan or drain required
  • AHRI Certified
  • cETLus Listed (TRC1200)
  • cULus Listed (TRC1600)
  • This product meets the requirements of Buy American (2009) and Build America, Buy America (BABA), as part of IIJA (2022). Download letter here.

AHRI cETLus cULus   BABA-ACT

Model Overview

With S&P USA Ventilation Systems’s (S&P USA) TRC Series (total recovery for commercial applications) for all climates, stale room air is exhausted, and the fresh outdoor air is brought back into the building. With this line of energy recovery ventilators (ERVs) these two airstreams are directed through a highly developed "air-to-air" energy exchange core. The air streams are physically separated by many layers of "plates" so there is no mixing or contamination of the fresh air. The plates are made of an engineered "resin" material that simultaneously transfers heat by conduction and humidity by attracting and moving water vapor from one airstream to the other.

S&P USA's TRCs moderate extremes in both temperature and humidity, creating a comfortable indoor environment. The unique moisture transfer capability of the S&P USA core also eliminates condensation and frost build up in most applications. Unlike other ERVs on the market no mechanical or electrical defrost systems are needed, which means higher heat recovery efficiencies, easier installation and more reliable operation.

10-year core warranty, 2-year unit warranty

Airflow Performance for TRC1200

ESP in H2O Single Phase Three Phase
Airflow CFM Watts Airflow CFM Watts
1.50 795 1300 760 1135
1.25 950 1380 940 1210
1.00 1090 1435 1115 1280
0.75 1225 1475 1280 1340
0.50 1350 1500 1435 1380
0.25 1470 1525 1575 1400
0.00 1575 1545 1675 1410

Airflow Performance for TRC1600

Motor HP Blower RPM Turns Open ESP in H2O
0.00 0.25 0.50 0.75 0.90 1.25 1.50
SCFM BHP SCFM BHP SCFM BHP SCFM BHP SCFM BHP SCFM BHP SCFM BHP
1.5 1148 4 1592 0.7 1480 0.7 1320 0.6 1120 0.5 800 0.4 - - - -
1.5 1304 2 1809 1.0 1720 1.0 1600 0.9 1410 0.8 1250 0.7 975 0.6 630 0.4
1.5 1460 0 2025 1.5 1950 1.4 1845 1.3 1715 1.2 1540 1.1 1400 1.0 1165 0.8

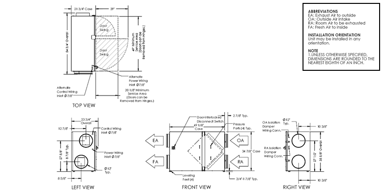
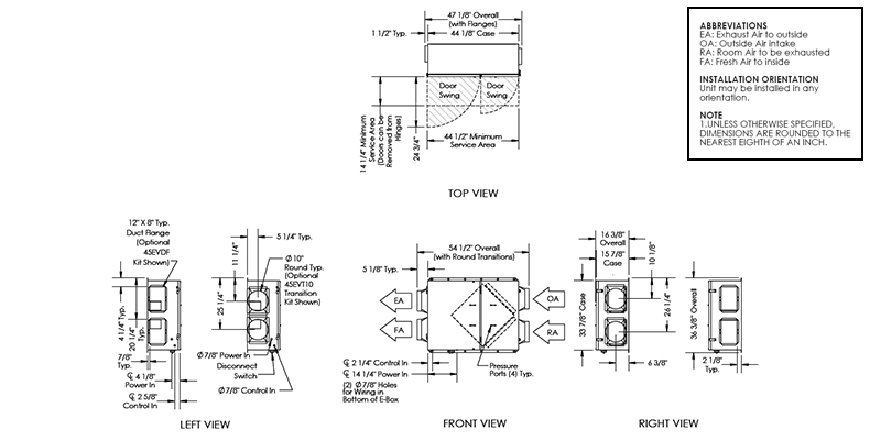
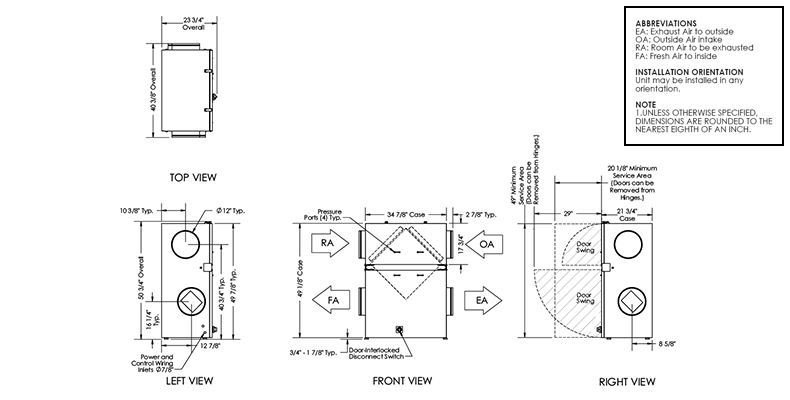
Dimensions for TRC1200

Dimensional drawing for the TRC1200 model.

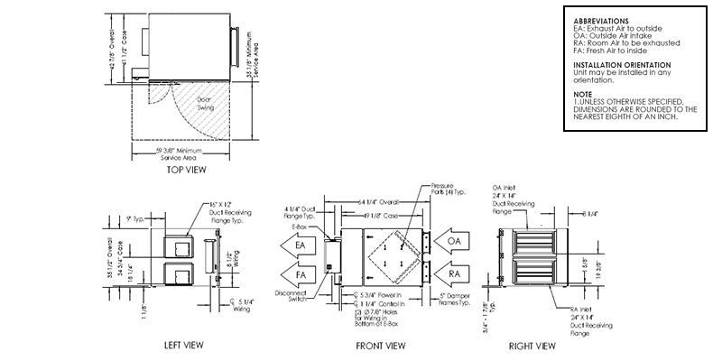
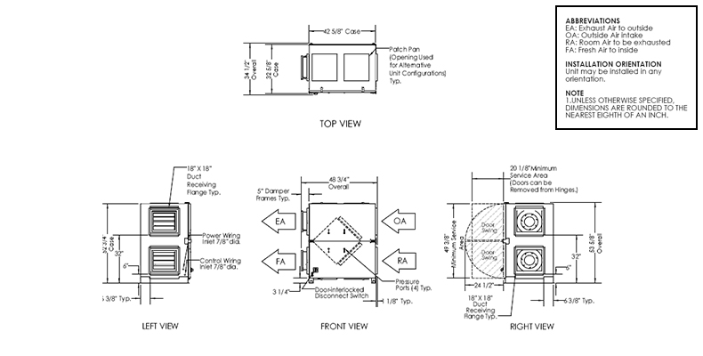
Dimensions for TRC1600

Dimensional drawing for the TRC1600 model.

Additional accessories are available for certain products. Contact your S&P Representative for more information about these accessories.

Standard Accessories

Commercial MERV Filter ERV Filters for TRC1200 thru TRC1600 Submittal
SCO2-W Carbon Dioxide Control - Wall Mount IOM
SMC-C MOTION OCCUPANCY CONTROL CEILING IOM
SMC-W MOTION OCCUPANCY CONTROL WALL IOM
SHW-20 Dehumidistat Submittal
STC7D Digital Time Clock IOM

Product Line Overview
Total Recovery Ventilator Brochure
BACnet Fan Control Brochure
Submittal (TRC1200)
Submittal (TRC1600)
IOM (TRC1200)
IOM (TRC1600)
Typical Specification Sheet (TRC1200)
Typical Specification Sheet (TRC1600)

  • General/Clean Air
  • Contaminated Air
  • Energy Recovery