TRCeN-RT (Rooftop/ Outdoor ERV models for Commercial Applications) Total Recovery for All Climates

Energy Recovery Ventilators

TRCeN-RT Model

Model Features

  • MERV 8 filters (MERV 13 options available)
  • Airflow range: 295 CFM to 2300 CFM, 0 to 4 inwg static pressure
  • TRCeN models equipped with on-board potentiometer for easy speed variation
  • Transformer/relay package allowing simple on/off control
  • Access doors for easy maintenance
  • Fully insulated case
  • Large cores for higher efficiency
  • No condensate pan or drain required
  • AHRI certified for performance
  • CETLus Listed for electrical safety
  • An industry-leading ten-year warranty for the static-plate core, two-year warranty for commercial ERVs
  • This product meets the requirements of Buy American (2009) and Build America, Buy America (BABA), as part of IIJA (2022) Download letter here

AHRI cETLus   BABA-ACT

Model Overview

S&P USA Ventilation Systems energy recovery ventilators (ERVs) provide a sustainable ventilation solution. The static-plate, crossflow core of these ERVs separates the outgoing, polluted indoor airstream from the incoming fresh airstream while transferring total energy (heat and water vapor) between the two. This prevents the mixing of airstreams and the transfer of pollutants across partition plates. In the winter, the ERVs preheat and humidify the cold, dry outside air using the warm interior air. During the summer, they precool and dehumidify the warm, humid outside air using the air-conditioned interior air.

These ERVs also moderate temperature and humidity extremes, creating a comfortable indoor environment. The unique moisture transfer capability of our core also eliminates condensation and frost build up in most applications, without requiring mechanical or electrical defrost systems. This results in higher heat recovery efficiencies, easier installation, and more reliable operation.

10-year core warranty, 2-year unit warranty

Airflow Performance for TRCeN500RT MOTOR 1P/208-230V

Airflow (CFM) External Static Pressure (Inches Water Column) Unit Power Consumption (Watts)
133 1.77 265
204 1.60 310
259 1.43 342
322 1.10 371
398 0.42 388
431 0.00 387

Airflow Performance for TRCeN800RT MOTOR 1P/208-230V

Airflow (CFM) External Static Pressure (Inches Water Column) Unit Power Consumption (Watts)
200 2.78 566
295 2.72 658
444 2.48 791
495 2.37 832
580 2.15 894
675 1.74 900
770 1.53 900
865 0.97 900
960 0.58 900
1100 0.00 900

Airflow Performance for TRCeN 1200RT

Airflow (CFM) External Static Pressure (Inches Water Column) Unit Power Consumption (Watts)
295 2.88 896
435 2.76 988
575 2.62 1079
715 2.45 1166
855 2.26 1245
995 2.03 1313
1135 1.77 1368
1275 1.47 1407
1415 1.12 1427
1555 0.71 1424
1695 0.26 1397
1695 0 1243

Airflow Performance for TRCeN 1600RT

Airflow (CFM) External Static Pressure (Inches Water Column) Unit Power Consumption (Watts)
400 2.95 999
590 2.78 1100
780 2.56 1197
970 2.29 1284
1160 1.97 1355
1350 1.61 1402
1540 1.2 1418
1730 0.75 1398
1920 0.25 1335
2011 0 1287

Dimensions for TRCeN 1200 RTH

Dimensional drawing for the TRCeN 1200 RTH model.

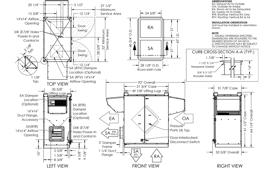
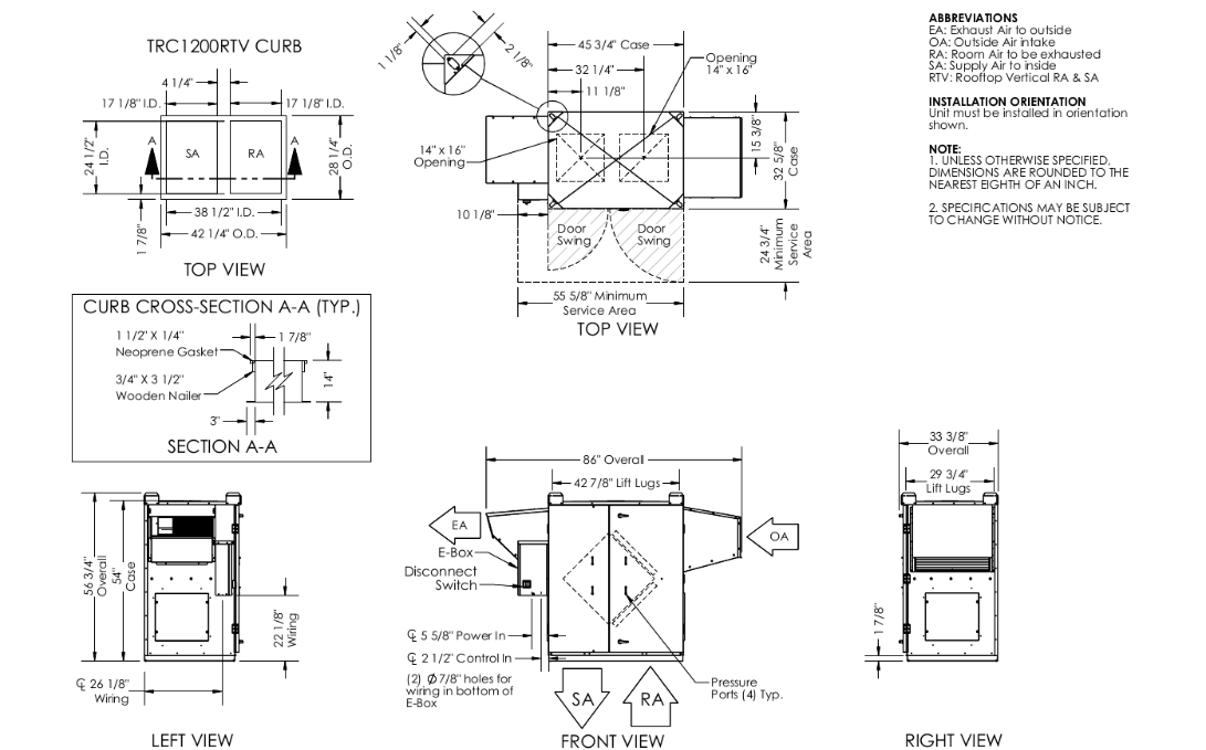
Dimensions for TRCeN 1200 RTV

Dimensional drawing for the TRCeN 1200 RTV model.

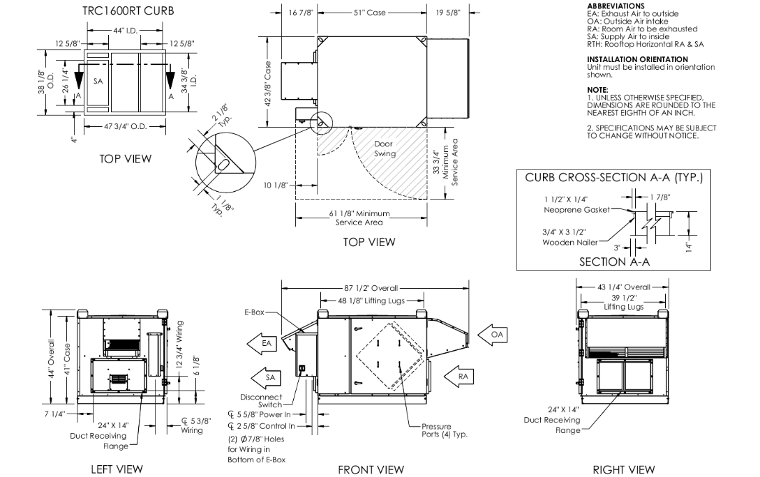
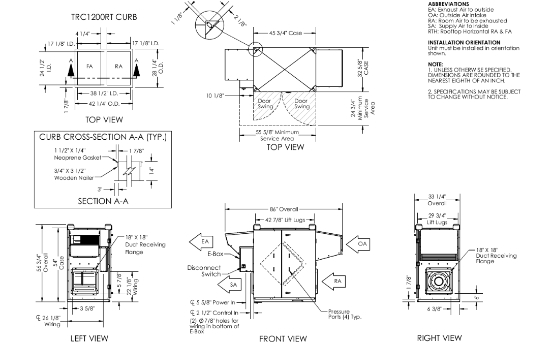
Dimensions for TRCeN 1600 RTH

Dimensional drawing for the TRCeN 1600 RTH model.

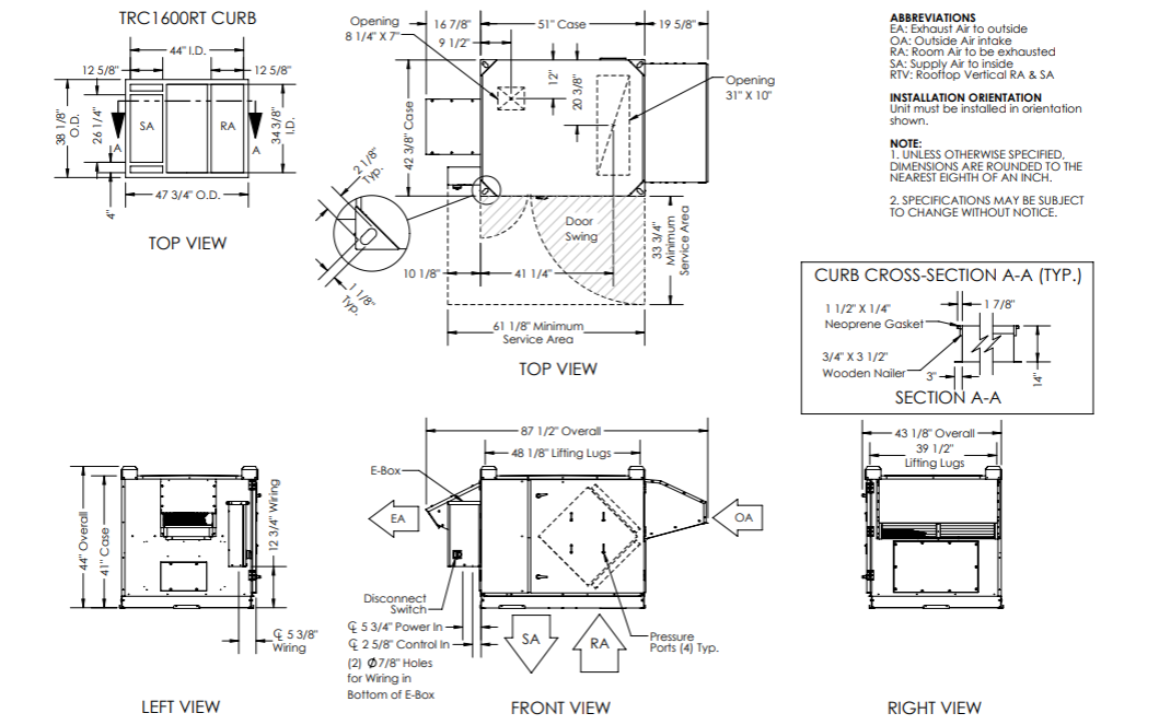
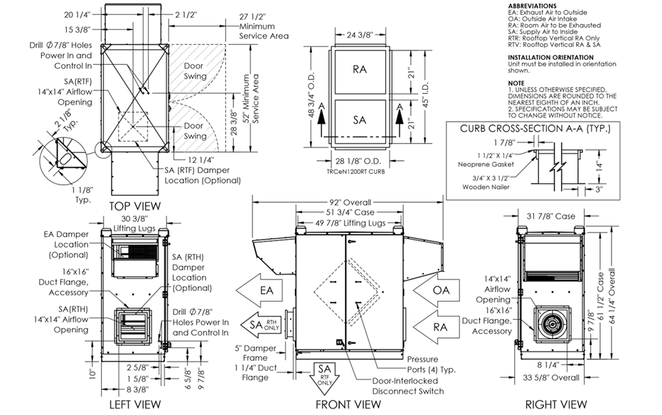
Dimensions for TRCeN 1600 RTV

Dimensional drawing for the TRCeN 1600 RTV model.

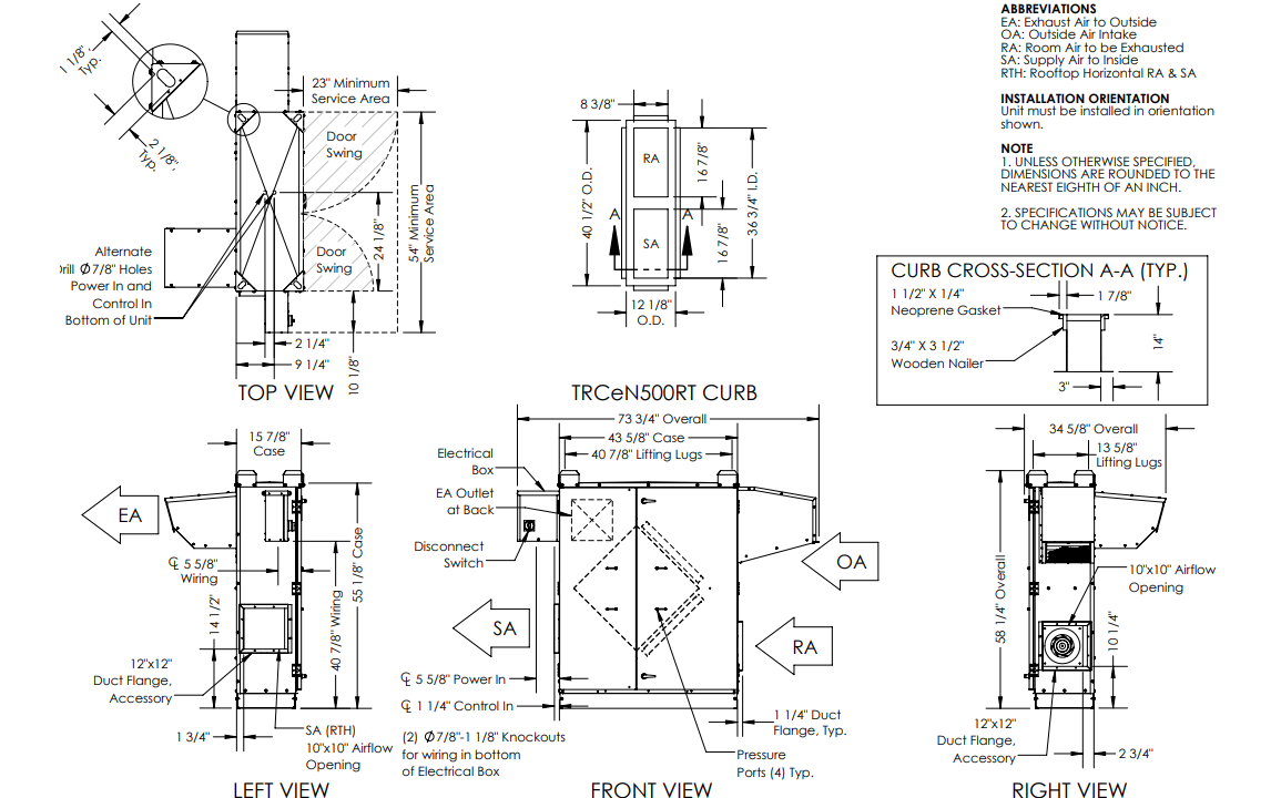
Dimensions for TRCeN500RTH-230-1P

Dimensional drawing for the TRC1600 model.

Dimensions for TRCeN500RTV-230-1P

Dimensional drawing for the TRC1600 model.

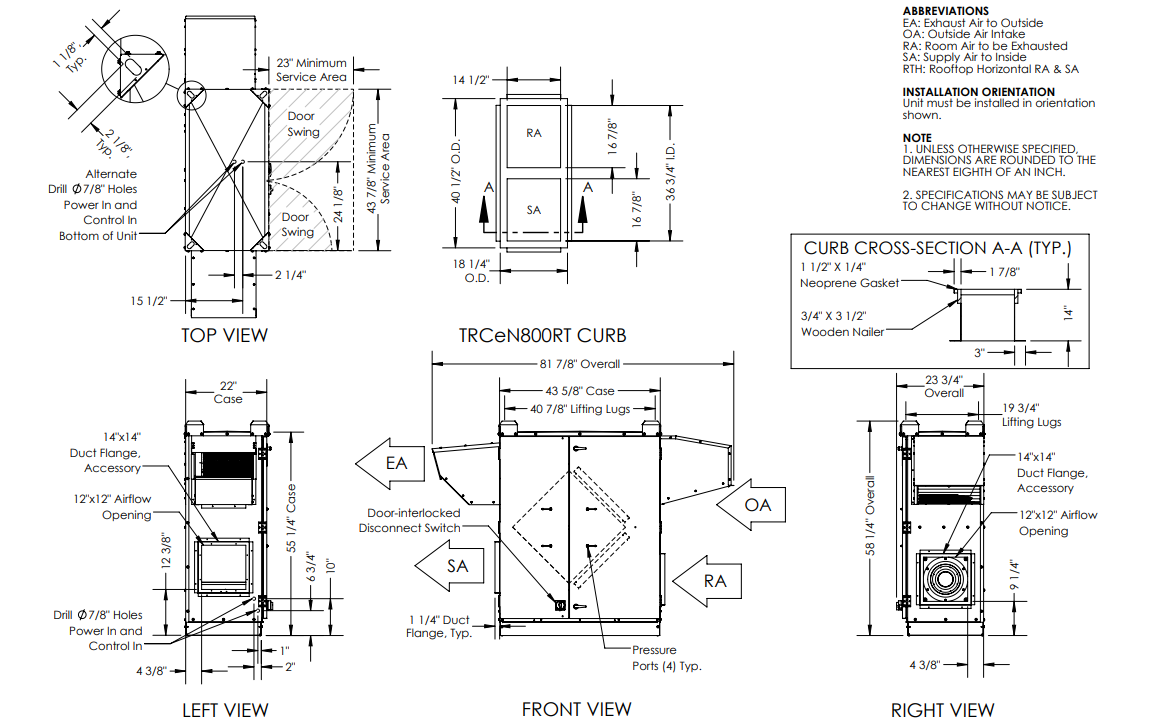
Dimensions for TRCeN800RTH-230-1P

Dimensional drawing for the TRC1600 model.

Dimensions for TRCeN800RTV-230-1P

Dimensional drawing for the TRC1600 model.

Additional accessories are available for certain products. Contact your S&P USA Ventilation Systems Representative for more information about these accessories.

Electrical Accessories

SPBACNETFC-W BACnet Fan Control Supplement IOM
SCO2-W Carbon Dioxide Control - Wall Mount IOM
SMC-C MOTION OCCUPANCY CONTROL CEILING IOM
SMC-W MOTION OCCUPANCY CONTROL WALL IOM
SHW-20 Dehumidistat Submittal
STC7D Digital Time Clock IOM

TRCeN-RT Accessories

147599 Flange Kit, TRCeN500, Rectangular 12" x 12", 2 flanges 07HEDF  
147600 Flange Kit, TRCeN800, Rectangular 14" x 14", 2 flanges 10HEDF  
147699 Flange Kit, TRCeN1200, Rectangular 16" x 16", 2 flanges 15HEDF  
147877 Flange Kit, TRCeN1600, Rectangular 16" x 22", 2 flanges 20HEDF  
147435 Roof Curb, TRCeN500RT, Standard 14"  
147384 Roof Curb, TRCeN800RT, Standard 14"  
147384 Roof Curb, TRCeN1200RT, P/N 300688 Standard 14"  
147384 Roof Curb, TRCeN1600RT, P/N 300691 Standard 14"  
1XHECC Curb Wind Clip, TRCeN500/800RT  
2XHECC Curb Wind Clip, TRCeN1200-1600RT  

IOM (TRCeN-RT Rooftop ERV models)
Product Line Overview
Total Recovery Ventilator Brochure
BACnet Fan Control Brochure
Submittal (TRCeN500RT)
Submittal (TRCeN800RT)
IOM (TRCeN500RT, TRCeN800RT)
Submittal (TRCeN 1200RT)
Submittal (TRCeN 1600RT)

  • Balanced Ventilation
  • Fresh air/ Clean air/ Indoor Air Quality (IAQ)
  • Energy Recovery