

Model Features
- Thrust air between 13 and 90N
- Air flow up to 5238 CFM
- Available in 60 Hz; 208V, 230V, 460V and 575V
- IFFTe available in 3PH 380~480V & IFFTe50/IFFTe30 available in 1PH 208-277V
- IFFT uses an AC motor
- IFFTe uses an EC motor for extra efficiency
- Galvanized sheet steel housing
- Industry Best 5 year housing warranty, 1 year motor
- cULus Listed
- Ecowatt® (IFFTe Model only)
- This product meets the requirements of Buy American (2009) and Build America, Buy America (BABA), as part of IIJA (2022). Download letter here.

![]()
Model Overview
The IFFT and IFFTe centrifugal Jet Fans were designed with relative compactness and efficiency in mind. They are perfect for moving a great deal of air to keep a parking garage safe. The fans induce air flow to move dangerous gases out of enclosed garages and to dedicated ventilation points. The IFFT uses AC motors and the IFFTe uses EC motors. The IFFTe improves the efficiency of the units by using the latest in EC motor technology.
5-year fan housing warranty, 1-year motor warranty
Performance
| Model | Thrust (N) |
Flow (CFM) |
Sound Level (LwA) |
Sound Pressure* (LpA) 5ft |
| IFFT-50N | 47 / 13 | 3384 / 1754 | 95 / 79 | 83 / 66 |
| IFFT-75N | 72 / 18 | 4709 / 2366 | 97 / 82 | 85 / 70 |
| IFFT-100N | 90 / 23 | 5238 / 2631 | 98 / 82 | 86 / 69 |
IFFTe Performance
| Model | Thrust (N) |
Flow (CFM) |
Sound Level (LwA) |
Sound Pressure* (LpA) 5ft |
| IFFTe-30N | 25 | 3255 | 85 | 67 |
| IFFTe-50N | 51 | 3692 | 96 | 85 |
| IFFTe-50N-1PH | 51 | 3692 | 96 | 85 |
| IFFTe-75N | 76 | 4942 | 97 | 86 |
| IFFTe-100N | 94 | 5498 | 98 | 87 |
Sound Data
4 Pole
| IFFT | 125 | 250 | 1K | 2K | 4K | 8K | LwA | Sones |
| 50 | 75 | 87 | 90 | 88 | 82 | 75 | 95 | 35 |
| 75 | 77 | 88 | 93 | 90 | 83 | 80 | 97 | 40 |
| 100 | 79 | 91 | 94 | 90 | 84 | 79 | 98 | 43 |
| IFFTe | 125 | 250 | 1K | 2K | 4K | 8K | LwA | Sones |
| 30 | 90 | 82 | 79 | 80 | 72 | 65 | 85 | 22 |
| 50 | 75 | 89 | 92 | 90 | 85 | 78 | 96 | 40 |
| 75 | 77 | 89 | 94 | 91 | 85 | 81 | 97 | 43 |
| 100 | 79 | 92 | 95 | 91 | 85 | 80 | 98 | 45 |
8 Pole
| IFFT | 125 | 250 | 1K | 2K | 4K | 8K | LwA | Sones |
| 50 | 68 | 69 | 73 | 70 | 63 | 54 | 79 | 13 |
| 75 | 66 | 70 | 76 | 74 | 67 | 57 | 82 | 15 |
| 100 | 69 | 71 | 75 | 72 | 65 | 54 | 82 | 14 |
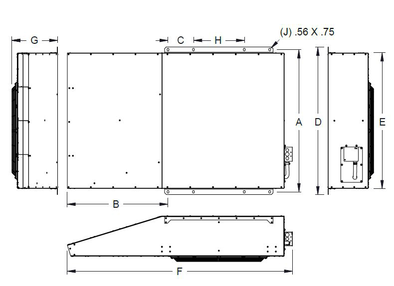
Dimensional data is displayed in inches.
| Model | A | B | C | D | E | F | G | H | J | WT(LB) |
| IFFT-30N | 48-1/8 | 17-1/8 | 8-1/4 | 49-3/4 | 46-1/8 | 36-1/8 | 9-3/4 | 8-1/4 | 6 | 136 |
| IFFTe-50N-1PH | 33-7/16 | 22-1/2 | 10-13/16 | 35 | 31-5/8 | 50-7/8 | 15 | - | 6 | 168 |
| IFFT-50N | 33-7/16 | 22-1/2 | 10-13/16 | 35 | 31-5/8 | 50-7/8 | 12-13/16 | - | 6 | 168 |
| IFFT-75N | 41-5/16 | 29-1/4 | 7-3/8 | 42-7/8 | 39-1/2 | 65-3/8 | 14-13/16 | 14-3/4 | 8 | 265 |
| IFFT-100N | 41-5/16 | 29-1/4 | 7-3/8 | 42-7/8 | 39-1/2 | 65-3/8 | 14-13/16 | 14-3/4 | 8 | 265 |
- Mixed-Use Applications
- Indoor Garages
- Indoor Parking Spaces
- Warehouses